Casa indipendente in vendita

Santeramo In Colle
€ 80.000
3 locali 3 locali
75 Mq 75 Mq
1 bagno 1 bagno

Casa indipendente in vendita

Santeramo In Colle

Descrizione annuncio

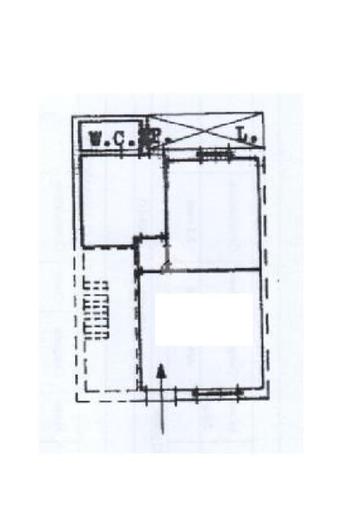
In zona via Stazione, proponiamo in vendita casa indipendente di 75 mq ca. al piano terra; composta da ingresso in disimpegno, sala da pranzo, cucina, camera da letto e bagno.

Al piano superiore terrazzo 30 mq ca. e adiacente vano tecnico di 25 mq ca.

Per ulteriori informazioni potete contattarci o raggiungerci presso la nostra agenzia affiliata di Santeramo, via Roma che è presente sul territorio locale e garantisce ai suoi clienti professionalità e qualità dei servizi.
Il nostro staff altamente professionale è tutti i giorni a vostra completa disposizione per accogliervi e soddisfare le vostre esigenze immobiliari.

Mostra tutto

Nelle vicinanze

Trasporto pubblico Trasporto pubblico
Santeramo in Colle
Santeramo in Colle
320 m
Scuole Scuole
Scuola materna Romita
300 m
Scuola Elementare Umberto I
440 m
scuola media statale Francesco Netti
740 m
Scuola elementare/materna Hero Paradiso
810 m
Scuola Elementare San Francesco d'Assisi
890 m
Farmacia Farmacia
Farmacia Cardinale
270 m
Parafarmacia Bollettieri
450 m
Parafarmacia Lella
480 m
Parafarmacia Paradiso
550 m
Farmacia Sant'Erasmo
660 m
Ospedali Ospedali
Ospedale Civile "Monte Iacoviello"
600 m
Bar Bar
Mocambo
150 m
Live Cafè
1,2 Km
Ristoranti Ristoranti
Centro Carni Ciccarone
240 m
Da Masin
300 m
Mimmo e Valeria
580 m
Macelleria Lauria
590 m
Da Scatozz
670 m
Mostra tutto

Caratteristiche

Rif.:
61126534
Piano:
Terra di 1
Totale piani:
1
Terrazzi:
1
Camere da letto:
1
Arredamento:
Assente
Mostra tutto
Prezzo Prezzo
€ 80.000
Rata mutuo Rata mutuo
€ 373 / mese
Spese annue Spese annue
€ 0
Proponi il tuo prezzoProponi il tuo prezzo

Classe Energetica

G
G
G
G
G
G
G
G
G
Anno di costruzione:
1963
Riscaldamento:
Autonomo
Tipo impianto:
A radiatori
Tipo alimentazione:
Metano

Ti interessa visionare l'immobile?

Fissa un appuntamento  Fissa un appuntamento

Richiedi informazioni

Clicca su Leggi per aprire l'informativa
* Questi campi sono obbligatori

Calcola il tuo mutuo

Semplice e senza impegno
Anticipo

( % )
Mutuo

( % )

pochi semplici passi

inserisci i tuoi dati
Questionario completato
Grazie per aver richiesto un appuntamento senza impegno con un nostro Consulente del Credito e Assicurativo.

Hai inserito correttamente tutti i dati necessari e a breve riceverai una e-mail con un link da convalidare per inviare i tuoi dati.
Affiliato
Studio Santeramo 2000 Srl
Via Roma, 37 70029 Santeramo In Colle (BA)

Il nostro staff


  • Francesco De Pinto
    Affiliato

  • Stefano Lovecchio
    Collaboratore
Via Roma, 37 70029 Santeramo In Colle (BA)
Zona: Santeramo in Colle
Mostra su mappa
Orari: dal lunedì al venerdì 9:00/13:00-16:00/21:00 sabato: 9:00/13:00-16:00/18:00
Affiliato
Studio Santeramo 2000 Srl
Via Roma, 37 70029 Santeramo In Colle (BA)

2025 Tecnocasa Franchising S.p.A. - P. IVA 08365160152 - Via Monte Bianco 60/A 20089 Rozzano (MI). Ogni agenzia ha un proprio titolare ed è autonoma. Privacy policy | Policy utilizzo | Cookie policy