Casa indipendente in vendita

Santeramo In Colle
€ 75.000
Prezzo aggiornato
3 locali 3 locali
80 Mq 80 Mq
2 bagni 2 bagni

Casa indipendente in vendita

Santeramo In Colle

Descrizione annuncio

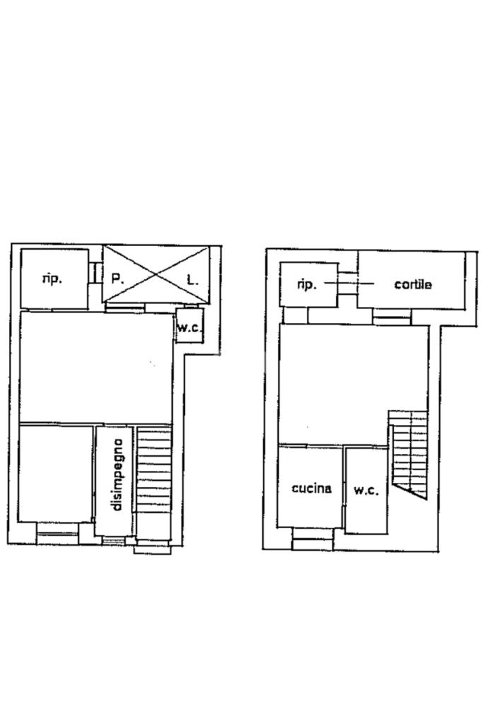
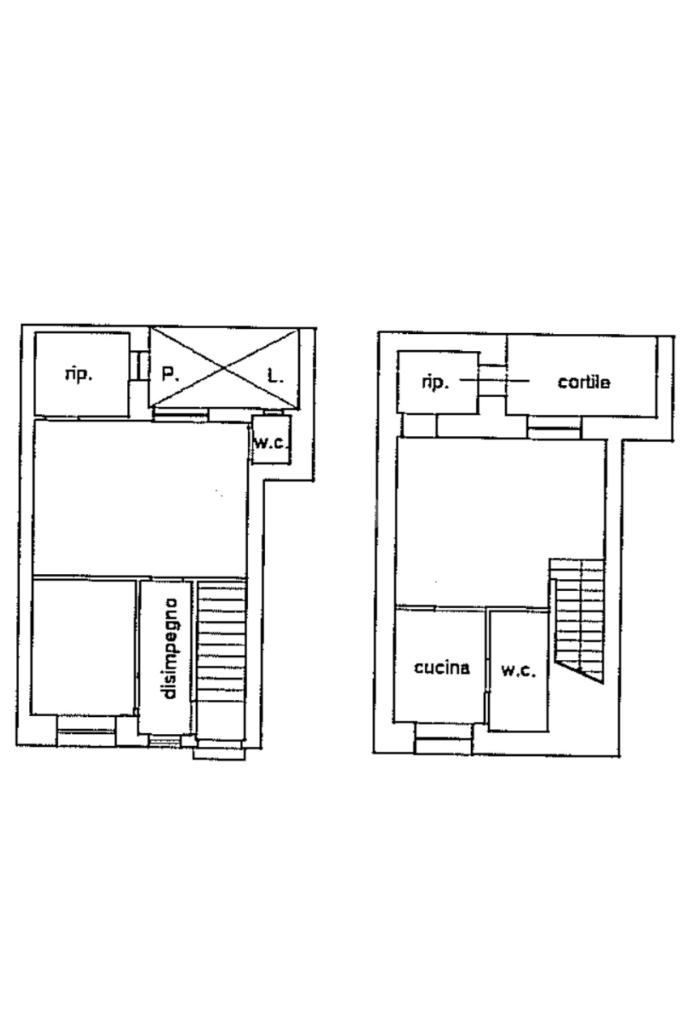
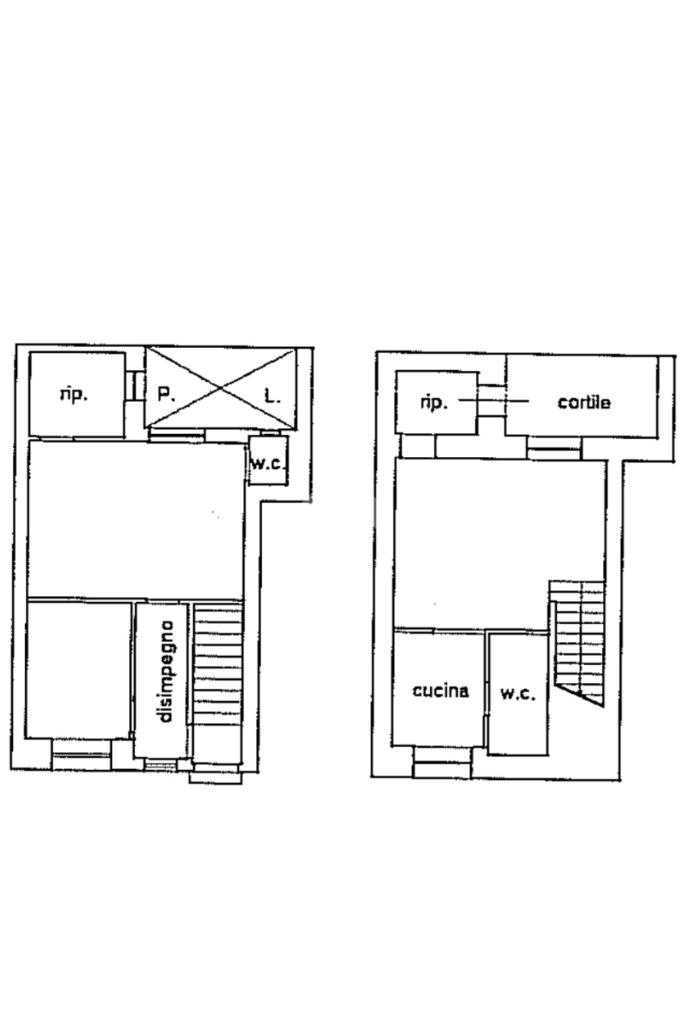
In zona via Roma, proponiamo in vendita abitazione indipendente di 80 mq ca. con piccolo cortile interno così composta:

piano terra formato da cameretta, camera matrimoniale con bagno e cabina armadio mentre al piano semi - interrato zona giorno composta da cucina, bagno, ripostiglio e cortile.

L'immobile è stato ristrutturato nel 2012 ed è quindi pronto ad essere abitato.

Per ulteriori informazioni potete contattarci o raggiungerci presso la nostra agenzia affiliata di Santeramo, via Roma che è presente sul territorio locale e garantisce ai suoi clienti professionalità e qualità dei servizi.
Il nostro staff altamente professionale è tutti i giorni a vostra completa disposizione per accogliervi e soddisfare le vostre esigenze immobiliari.

Mostra tutto

Nelle vicinanze

Trasporto pubblico Trasporto pubblico
Santeramo in Colle
Santeramo in Colle
1,5 Km
Scuole Scuole
Scuola Elementare Balilla
260 m
Scuola materna Quasimo
330 m
Scuola Media Statale San Giovanni Bosco
560 m
IISS "Pietro Sette" LS-ITC Nicola Dell'Andro
600 m
Scuola Primaria Montefreddo
600 m
Farmacia Farmacia
Farmacia Natuzzi
170 m
Parafarmacia Dott.ssa Antonia Lella
250 m
Farmacia Sisto
310 m
Farmacia D'Ambruoso - La casa della salute
340 m
Farmacia dell'Annunziata
460 m
Ospedali Ospedali
Ospedale Civile "Monte Iacoviello"
610 m
Bar Bar
Live Cafè
120 m
Mocambo
1,2 Km
Ristoranti Ristoranti
Macelleria - Rosticceria Equina Di Lauria Marcello
150 m
Macelleria Lauria
300 m
Macelleria Lassandro
400 m
Socrate
430 m
Laertina
450 m
Mostra tutto

Caratteristiche

Rif.:
61149790
Piano:
Terra di 2
Totale piani:
2
Camere da letto:
2
Arredamento:
Assente
Condizionamento:
Assente
Mostra tutto
Prezzo Prezzo
€ 75.000
Rata mutuo Rata mutuo
€ 356 / mese
Spese annue Spese annue
€ 0
Proponi il tuo prezzoProponi il tuo prezzo

Classe Energetica

F
F
F
F
F
F
F
F
F
EP globale non rinnovabile:
169.91 kW h/m² anno
EP globale rinnovabile:
1.53 kW h/m² anno
EP invernale del fabbricato:
EP estiva del fabbricato:
Anno di costruzione:
1967
Riscaldamento:
Autonomo
Tipo impianto:
A radiatori
Tipo alimentazione:
Metano

Prezzo ridotto di €1 (10%%)

Ti interessa visionare l'immobile?

Fissa un appuntamento  Fissa un appuntamento

Richiedi informazioni

Clicca su Leggi per aprire l'informativa
* Questi campi sono obbligatori

Calcola il tuo mutuo

Semplice e senza impegno
Anticipo

( % )
Mutuo

( % )

pochi semplici passi

inserisci i tuoi dati
Questionario completato
Grazie per aver richiesto un appuntamento senza impegno con un nostro Consulente del Credito e Assicurativo.

Hai inserito correttamente tutti i dati necessari e a breve riceverai una e-mail con un link da convalidare per inviare i tuoi dati.
Affiliato
Studio Santeramo 2000 Srl
Via Roma, 37 70029 Santeramo In Colle (BA)

Il nostro staff


  • Francesco De Pinto
    Affiliato

  • Stefano Lovecchio
    Collaboratore
Via Roma, 37 70029 Santeramo In Colle (BA)
Zona: Santeramo in Colle
Mostra su mappa
Orari: dal lunedì al venerdì 9:00/13:00-16:00/21:00 sabato: 9:00/13:00-16:00/18:00
Affiliato
Studio Santeramo 2000 Srl
Via Roma, 37 70029 Santeramo In Colle (BA)

2026 Tecnocasa Franchising S.p.A. - P. IVA 08365160152 - Via Monte Bianco 60/A 20089 Rozzano (MI). Ogni agenzia ha un proprio titolare ed è autonoma. Privacy policy | Policy utilizzo | Cookie policy