Casa di corte in vendita

Santeramo In Colle
€ 80.000
5 locali 5 locali
181 Mq 181 Mq

Casa di corte in vendita

Santeramo In Colle

Descrizione annuncio

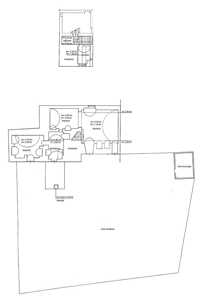
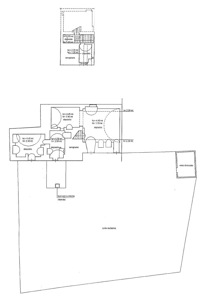
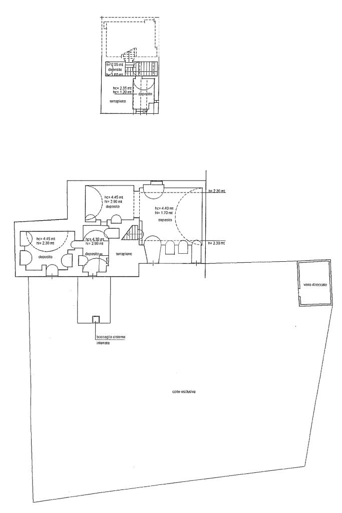
In zona Viglione, proponiamo in vendita storico casale di 180 mq ca. disposto su due livelli.

Il piano terra è composto da quattro stanze intercomunicanti tra di loro caratterizate da storiche volte con pietre a vista. Mentre al piano superiore, dispone di ulteriori due vani con adiacente terrazza.

Inoltre, l'immobile ha di pertinenza cortile antistante di 1037 mq e terreno di 8042 mq.

Per ulteriori informazioni potete contattarci o raggiungerci presso la nostra agenzia affiliata di Santeramo, via Roma che è presente sul territorio locale e garantisce ai suoi clienti professionalità e qualità dei servizi.
Il nostro staff altamente professionale è tutti i giorni a vostra completa disposizione per accogliervi e soddisfare
le vostre esigenze immobiliari.

Mostra tutto

Nelle vicinanze

Trasporto pubblico Trasporto pubblico
Santeramo in Colle
Santeramo in Colle
1,5 Km
Scuole Scuole
Scuola Elementare Balilla
260 m
Scuola materna Quasimo
330 m
Scuola Media Statale San Giovanni Bosco
560 m
IISS "Pietro Sette" LS-ITC Nicola Dell'Andro
600 m
Scuola Primaria Montefreddo
600 m
Farmacia Farmacia
Farmacia Natuzzi
170 m
Parafarmacia Dott.ssa Antonia Lella
250 m
Farmacia Sisto
310 m
Farmacia D'Ambruoso - La casa della salute
340 m
Farmacia dell'Annunziata
460 m
Ospedali Ospedali
Ospedale Civile "Monte Iacoviello"
610 m
Bar Bar
Live Cafè
120 m
Mocambo
1,2 Km
Ristoranti Ristoranti
Macelleria - Rosticceria Equina Di Lauria Marcello
150 m
Macelleria Lauria
300 m
Macelleria Lassandro
400 m
Socrate
430 m
Laertina
450 m
Mostra tutto

Caratteristiche

Rif.:
61162192
Piano:
1 di 1 (Piano terra con giardino)
Terrazzi:
1
Arredamento:
Assente
Condizionamento:
Assente
Ascensore:
No
Mostra tutto
Prezzo Prezzo
€ 80.000
Rata mutuo Rata mutuo
€ 380 / mese
Spese annue Spese annue
€ 0
Proponi il tuo prezzoProponi il tuo prezzo

Classe Energetica

Questo immobile è esente da classe energetica
Anno di costruzione:
1900
Riscaldamento:
Assente

Ti interessa visionare l'immobile?

Fissa un appuntamento  Fissa un appuntamento

Richiedi informazioni

Clicca su Leggi per aprire l'informativa
* Questi campi sono obbligatori

Calcola il tuo mutuo

Semplice e senza impegno
Anticipo

( % )
Mutuo

( % )

pochi semplici passi

inserisci i tuoi dati
Questionario completato
Grazie per aver richiesto un appuntamento senza impegno con un nostro Consulente del Credito e Assicurativo.

Hai inserito correttamente tutti i dati necessari e a breve riceverai una e-mail con un link da convalidare per inviare i tuoi dati.
Affiliato
Studio Santeramo 2000 Srl
Via Roma, 37 70029 Santeramo In Colle (BA)

Il nostro staff


  • Francesco De Pinto
    Affiliato

  • Stefano Lovecchio
    Collaboratore
Via Roma, 37 70029 Santeramo In Colle (BA)
Zona: Santeramo in Colle
Mostra su mappa
Orari: dal lunedì al venerdì 9:00/13:00-16:00/21:00 sabato: 9:00/13:00-16:00/18:00
Affiliato
Studio Santeramo 2000 Srl
Via Roma, 37 70029 Santeramo In Colle (BA)

2026 Tecnocasa Franchising S.p.A. - P. IVA 08365160152 - Via Monte Bianco 60/A 20089 Rozzano (MI). Ogni agenzia ha un proprio titolare ed è autonoma. Privacy policy | Policy utilizzo | Cookie policy