Casa indipendente in vendita

Santeramo In Colle
€ 60.000
3 locali 3 locali
120 Mq 120 Mq
2 bagni 2 bagni

Casa indipendente in vendita

Santeramo In Colle

Descrizione annuncio

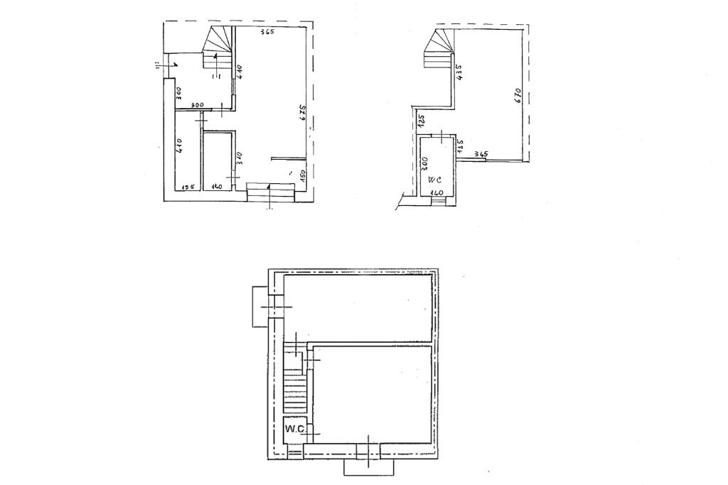
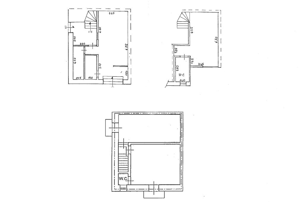
In zona Corso Tripoli, proponiamo in vendita intero stabile angolare cosi formato: primo piano di 60 mq ca. composto da due ampi vani con bagno; piano terra composto da un vano e soppalco comprensivo di bagno; mentre al piano seminterrato troviamo box auto di 35 mq ca.

Inoltre, l'immobile dispone di duplice ingresso che unisce il piano terra con il piano seminterrato così da renderli intercomunicanti tra di loro.

Per ulteriori informazioni potete contattarci o raggiungerci presso la nostra agenzia affiliata di Santeramo, via Roma che è presente sul territorio locale e garantisce ai suoi clienti professionalità e qualità dei servizi.
Il nostro staff altamente professionale è tutti i giorni a vostra completa disposizione per accogliervi e soddisfare le vostre esigenze immobiliari.

Mostra tutto

Nelle vicinanze

Trasporto pubblico Trasporto pubblico
Santeramo in Colle
Santeramo in Colle
1,1 Km
Scuole Scuole
Scuola elementare/materna Hero Paradiso
160 m
Scuola Elementare Balilla
320 m
IISS "Pietro Sette" IPSIA
380 m
Scuola Elementare Umberto I
390 m
Scuola materna Romita
520 m
Farmacia Farmacia
Farmacia dell'Annunziata
190 m
Farmacia Sisto
270 m
Farmacia Sant'Erasmo
300 m
Parafarmacia Lella
350 m
Parafarmacia Bollettieri
460 m
Ospedali Ospedali
Ospedale Civile "Monte Iacoviello"
280 m
Bar Bar
Live Cafè
530 m
Mocambo
720 m
Ristoranti Ristoranti
Da Michele & Figli
70 m
Laertina
120 m
Da Scatozz
180 m
Mimmo e Valeria
240 m
Macelleria Carni Arrosto
250 m
Mostra tutto

Caratteristiche

Rif.:
61172261
Piano:
1 di 1 (Piano su più livelli)
Box:
1
Balconi:
2
Camere da letto:
2
Arredamento:
Assente
Mostra tutto
Prezzo Prezzo
€ 60.000
Rata mutuo Rata mutuo
€ 285 / mese
Spese annue Spese annue
€ 0
Proponi il tuo prezzoProponi il tuo prezzo

Classe Energetica

G
G
G
G
G
G
G
G
G
EP globale non rinnovabile:
61.00 kW h/m² anno
EP globale rinnovabile:
0.00 kW h/m² anno
EP invernale del fabbricato:
EP estiva del fabbricato:
Anno di costruzione:
1967
Riscaldamento:
Assente

Ti interessa visionare l'immobile?

Fissa un appuntamento  Fissa un appuntamento

Richiedi informazioni

Clicca su Leggi per aprire l'informativa
* Questi campi sono obbligatori

Calcola il tuo mutuo

Semplice e senza impegno
Anticipo

( % )
Mutuo

( % )

pochi semplici passi

inserisci i tuoi dati
Questionario completato
Grazie per aver richiesto un appuntamento senza impegno con un nostro Consulente del Credito e Assicurativo.

Hai inserito correttamente tutti i dati necessari e a breve riceverai una e-mail con un link da convalidare per inviare i tuoi dati.
Affiliato
Studio Santeramo 2000 Srl
Via Roma, 37 70029 Santeramo In Colle (BA)

Il nostro staff


  • Francesco De Pinto
    Affiliato

  • Stefano Lovecchio
    Collaboratore
Via Roma, 37 70029 Santeramo In Colle (BA)
Zona: Santeramo in Colle
Mostra su mappa
Orari: dal lunedì al venerdì 9:00/13:00-16:00/21:00 sabato: 9:00/13:00-16:00/18:00
Affiliato
Studio Santeramo 2000 Srl
Via Roma, 37 70029 Santeramo In Colle (BA)

2026 Tecnocasa Franchising S.p.A. - P. IVA 08365160152 - Via Monte Bianco 60/A 20089 Rozzano (MI). Ogni agenzia ha un proprio titolare ed è autonoma. Privacy policy | Policy utilizzo | Cookie policy